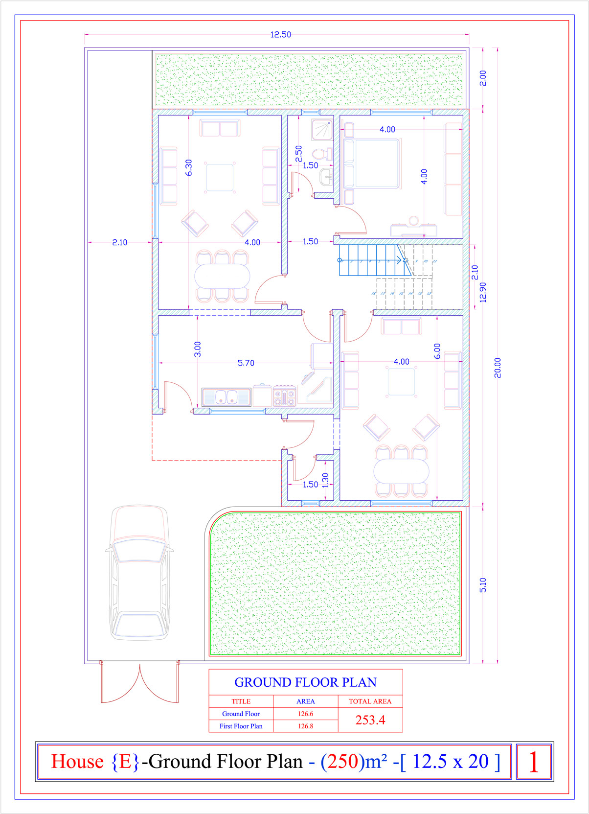
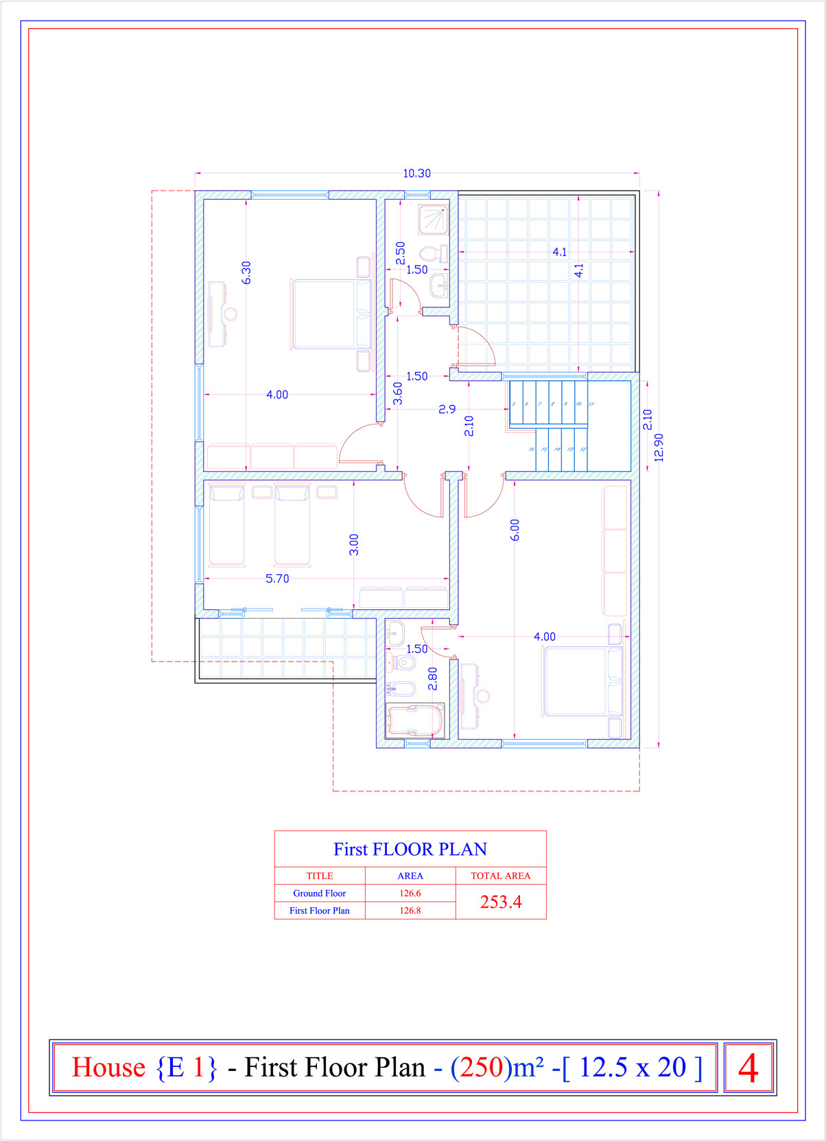
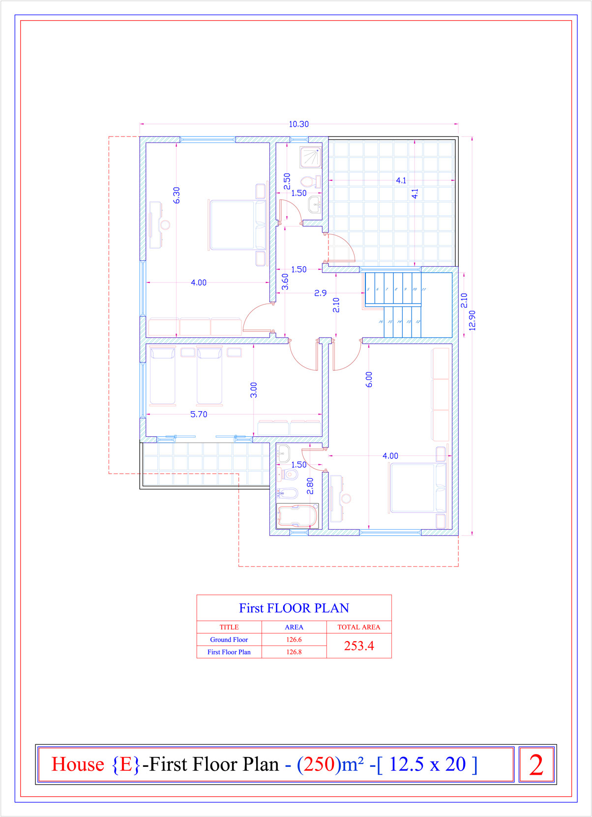
المنطقة 2
العنوان: اربيل
المساحة: 250 م2
جميع الحقوق محفوظة لشركة الاسكان © 2020
تصميم و تطوير: Lucid Source