ڤیلا نوع (B)
العنوان: الديوانية
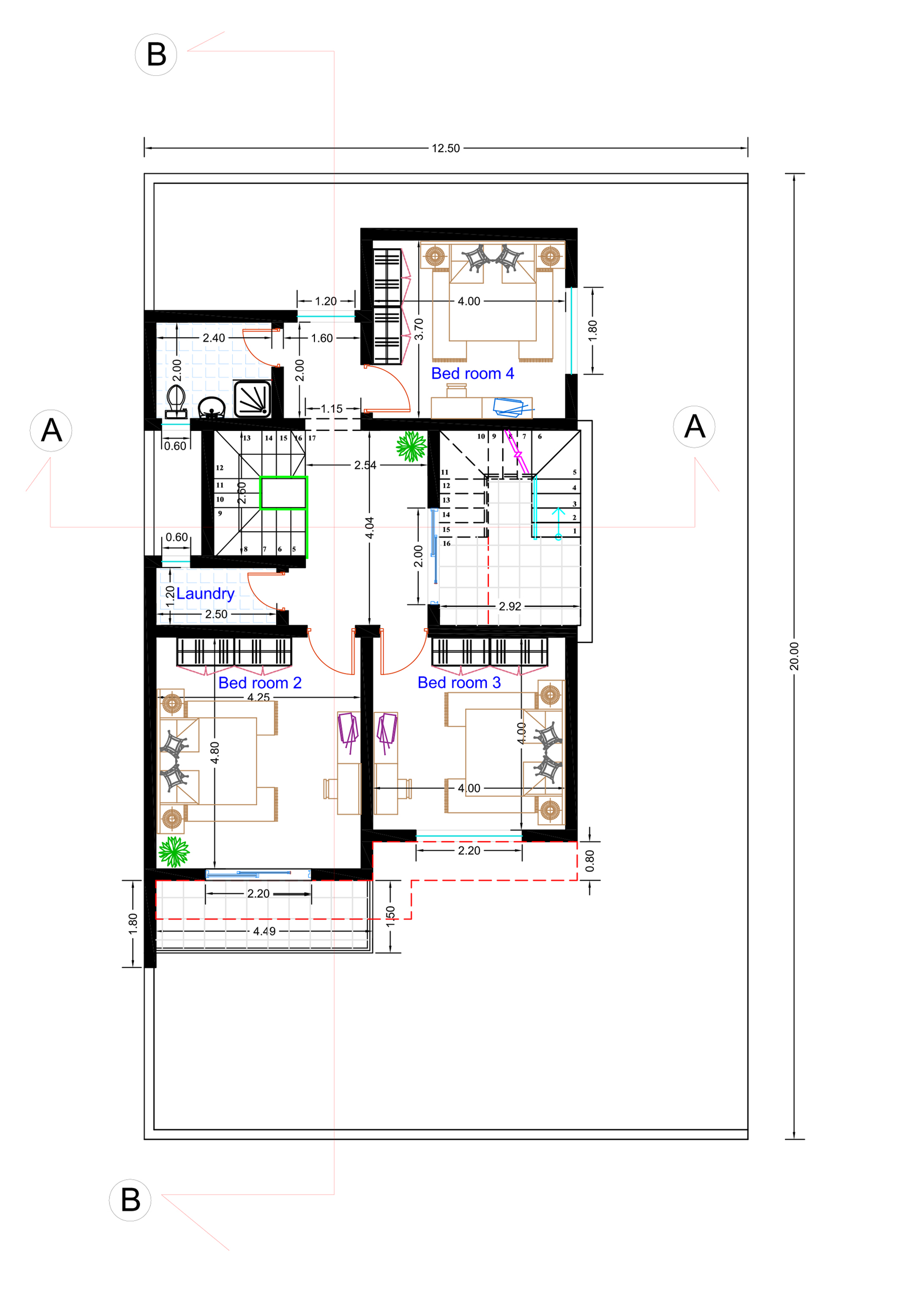
المساحة: 250 م2
متوفر للبيع
السلام ستي تقدم ڤلل من نوع (B) للاشخاص الذين يفضلون مساحات اكبر، الڤیلا متكونة من 250 م2 ، طابق ارضي و اول و4 غرف نوم، مع لمسة جميلة معمارية للتصميم الخارجي.
جميع الحقوق محفوظة لشركة الاسكان © 2020
تصميم و تطوير: Lucid Source