المنطقة 4
العنوان: اريبل
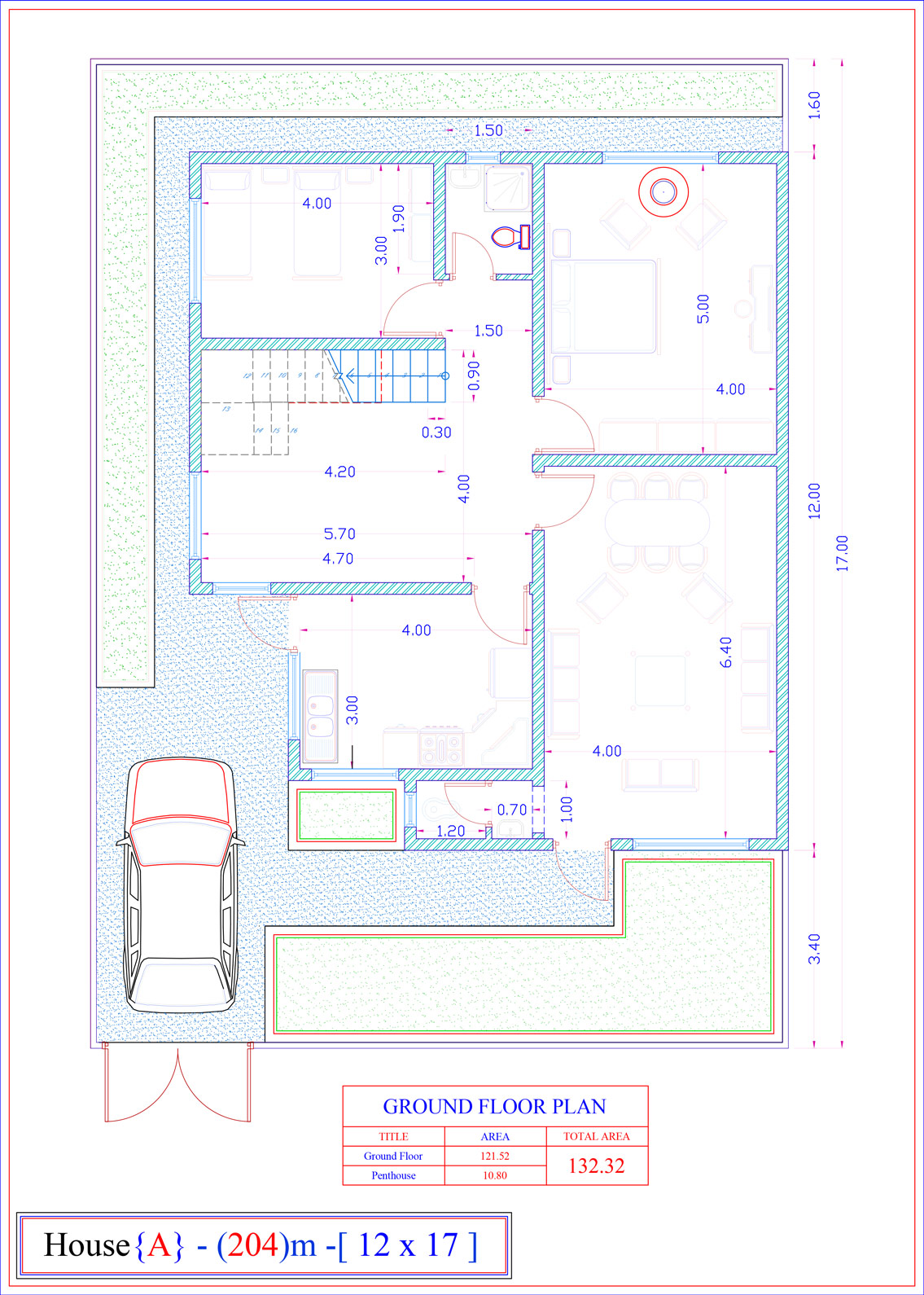
المساحة: 300 م2
جميع الحقوق محفوظة لشركة الاسكان © 2020
تصميم و تطوير: Lucid Source